
LMD型螺旋闸门、手动插板阀
产品概述 LMD型螺旋 闸门 、手动插板阀是一种粉料、晶粒料、颗粒料及小块物料的流量或输送量的主要控制设备,广泛应用于矿山、粮食等行业控制流量变化或迅速切断(特料直径50mm)。 产品外形结构尺寸 LMD型螺旋闸门、手动插板阀外形结构尺寸(mm) 类别 AA BB...
- 产品详情
产品概述
LMD型螺旋闸门、手动插板阀是一种粉料、晶粒料、颗粒料及小块物料的流量或输送量的主要控制设备,广泛应用于矿山、粮食等行业控制流量变化或迅速切断(特料直径≤50mm)。产品外形结构尺寸
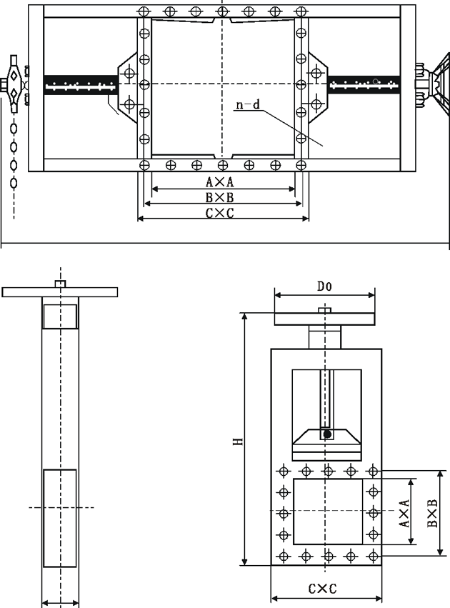
类别 | A×A | B×B | C×C | L | H | D0 | n-d |
单向 | 220×200 | 256×256 | 296×296 | 100 | 820 | 300 | 8-φ12 |
250×250 | 306×306 | 346×346 | 100 | 930 | 340 | 8-φ14 | |
300×300 | 356×356 | 396×396 | 100 | 1050 | 380 | 8-φ14 | |
400×400 | 456×456 | 496×496 | 100 | 1140 | 445 | 12-φ14 | |
450×450 | 510×510 | 556×556 | 120 | 1450 | 530 | 12-φ18 | |
500×500 | 560×560 | 606×606 | 120 | 1610 | 580 | 16-φ18 | |
双向 | 600×600 | 660×660 | 706×706 | 120 | 1830 | 450 | 16-φ18 |
700×700 | 770×770 | 820×820 | 140 | 2130 | 450 | 20-φ18 | |
800×800 | 870×870 | 920×920 | 140 | 2440 | 450 | 20-φ18 | |
900×900 | 974×974 | 1030×1030 | 160 | 2660 | 450 | 24-φ23 | |
1000×1000 | 1074×1074 | 1130×113 | 160 | 2870 | 450 | 24-φ23 | |
说明 | LMD-单向 | Ⅰ-手轮 | 链条节数M=0.105×-113(×是丝杆中心离地面高度)距地面小于1.7米用于手轮大于1.7米用链轮 | ||||
LMD-双向 | Ⅱ-链条 |
产品外形结构尺寸图

闸门在安装时应注意事项
1、闸门安装时应采用整体就位安装,禁止闸框、闸板分体安装,防止闸框变形。
2、在闸门安装前,首先检查各连接部位的螺栓是否因运输装卸中造成的松动,如有松动应加以紧固。
3、闸门出厂前,为了使闸板、闸框贴合的更紧,安装后减少间隙,2米以上的闸门在上下横框上安装了压板卡铁,立框的斜铁上增加了顶丝。注意在间隙调整后将卡铁和斜铁上的顶丝拆除,以使闸门启闭。
4、检查主立框与横框连结上的止水面是否有错位,如有错位则松动连接螺栓将止水面调整在同一平面内。
5、在浇筑混凝土时,流进闸板、闸框、斜铁、挡板间隙中的灰浆应,防止灰浆凝固影响启闭。
6、二期浇筑前将闸门整体吊装就位后找好前后、左右的正确位置,然后调整螺栓与工程配钢筋焊牢固。 同时闸门的分类有很多,不仅有铸铁闸门还有钢闸门、镶铜闸门等等,并且以上的信息同样适用于其他类别的闸门!
-
GHPZS673H-10Q气动双填料密封刀闸阀 双重密封刀闸阀
一、主要用途和性能: 1、GHPZ刀闸阀适用于粉体、浆液、颗粒、粉尘、污水、矿浆等固态...
-
GHPZ系列双填料刀闸阀-气动刀型浆液阀-带保护罩气动刀
品牌 : 沪工恒 型号 : 、GHPZ 连接形式 : 对夹 主体材料 : 不锈钢 公称通径 : 50-1200...
-
PZ941H电动排渣闸阀PN16~PN64
产品说明: PZ941H电动排渣闸阀适用于工作压力 1.6~6.4MPa,工作温度 0~100℃ 的火力...
-
Z962Y-P54l70v/Z962Y-P54200v高温高压电站双闸板铬钼
产品概述 Z962Y-P54l70v Z962Y-P54200v高温高压电站双闸板铬钼钢 电动闸阀 也称电站专...